Town Gate, Calverley, Pudsey, West Yorkshire, LS28
- Rooms
4 Bedrooms / 1 Bathrooms / 2 Receptions - Energy Performance Certificate (EPC)
D - Council Tax
D
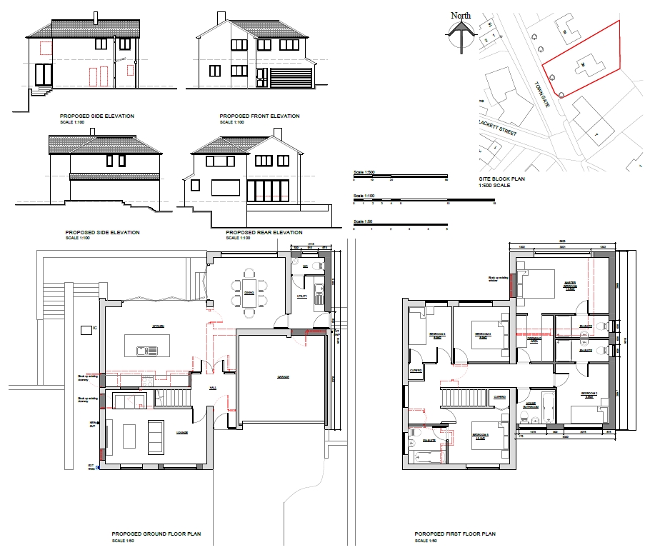
An exciting and rare opportunity to acquire a substantial home in a prime Calverley location, sold with full planning permission and full CGI visuals showcasing its exceptional potential. Tucked away on a private road shared with just one other property, this spacious home already offers flexible accommodation, generous gardens, and beautiful field views—but the true appeal lies in what’s possible. Proposed plans detail an impressive side and rear extension, transforming the property into a high-end five-bedroom, four-bathroom residence with outstanding open-plan living space. Whether you’re a family looking to create your forever home or a developer seeking a standout project, this is a unique chance to bring a stunning vision to life in one of Calverleys most sought-after settings. Call our Prestige team now to arrange your viewing!
LOCATION
Calverley Village offers a thriving village atmosphere. Situated between Leeds and Bradford, with excellent access links into the City Centres making commuting straightforward. The A658 and A657 both provide major links to the motorway networks and for those wishing to travel further afield, Leeds-Bradford Airport is a short drive away. The train station at Apperley Bridge gets you into Leeds in ten minutes. Just along the A657 is a shopping complex where a Sainsbury's supermarket and other major retail outlets can be found. The popular Owlcotes Centre at Pudsey offers Marks & Spencers & Asda Superstores, with New Pudsey train station adjacent. The Village has two primary schools, Calverley Church Primary School, and Calverley Parkside School, a park, Village pubs and a handful of local amenities are on hand, in addition there are also two golf courses nearby. Only a short car ride away are the neighbouring 'villages' of Horsforth, Guiseley, Rawdon and Farsley where a further selection of shops, pubs, restaurants and eateries can be found.
SPECIAL NOTE
This property is offered for sale with the exciting benefit of a live planning application, accompanied by CGI visuals and proposed floorplans to showcase its incredible potential. Subject to approval, the plans outline a substantial side and rear extension to create an impressive five-bedroom, four-bathroom family home with exceptional ground floor living space—perfectly suited to modern lifestyles. This presents a rare opportunity for buyers to envision and potentially realise their dream home in a prime Calverley location. Full proposed plans are available on request.
GROUND FLOOR
Step inside through the welcoming front porch into a bright central hallway that sets the tone for the home. From here, you’ll find convenient access to all main living areas, including a handy under-stairs storage cupboard and a stylish two-piece guest WC. At the front of the home, the contemporary dining kitchen is both practical and inviting, featuring sleek wall and base units, durable laminate worktops, integrated appliances, breakfast bar seating, and a generous walk-in pantry. Folding doors open into the extended conservatory—an ideal setting for family meals or casual entertaining, seamlessly connected to the heart of the kitchen. To the rear, the expansive main lounge offers a calm, elegant space to unwind, with large windows framing picturesque views over the garden and open fields. Just off the lounge, a flexible room with dual-aspect windows can serve as a home office, reading nook, or snug. A spiral staircase leads to a striking mezzanine-level bedroom above—perfect for guests, teens, or creative use.
FIRST FLOOR
Upstairs, the first floor hosts three generously proportioned double bedrooms—ideal for family living, guests, or flexible use. Two of the bedrooms enjoy peaceful views over the rear garden and open countryside, while the spacious main bedroom sits to the front and benefits from built-in storage cleverly positioned above the stairs. Completing the floor is a well-sized three-piece house bathroom, finished with classic white ceramic tiling and offering great potential for modern upgrades.
OUTSIDE
Tucked away on an exclusive private road just off Town Gate in the heart of Calverley, this home enjoys a rare and peaceful setting shared with only one other property. Surrounded by mature trees, the plot feels private, established, and full of character. At the front, two separate driveways—one leading to a double garage, the other extending alongside the house—provide generous off-street parking. Gated access on both sides opens to the show-stopping rear garden: a beautifully maintained outdoor space featuring a large stone-flagged terrace, sweeping lawn, and lush, well-stocked borders. A useful workshop and storage area is located beneath the lounge, with convenient access from the bottom of the rear garden steps. With open field views and a high level of privacy, the garden offers both serenity and endless potential for outdoor living.
BROCHURE DETAILS
Hardisty and Co prepared these details, including photography, in accordance with our estate agency agreement.
SERVICES – Disclosure of Financial Interests
Unless instructed otherwise, the company would normally offer all clients, applicants, and prospective purchasers its full range of estate agency services, including the valuation of their present property and sales service. We also intend to offer clients, applicants and prospective purchasers' mortgage and financial services advice through our association with Mortgage Advice Bureau. We will also offer to clients and prospective purchasers the services of our panel solicitors, removers, and contactors. We would normally be entitled to commission or fees for such services and disclosure of all our financial interests can be found on our website.
MORTGAGE SERVICES
We are whole of market and would love to help with your purchase or remortgage. Call to book your appointment today 0113 2390012 option 4.
Start your journey
Valuing people, not just property.























